问一下你周边,有多少人的办公室灯光是由装修师傅稍带手儿设计的?
答案一定不会出乎意料之外,无非就是想说,简单一个办公室,布灯绝非小事,不然你以为,也值得要ERCO这个大牛来图解?
同一个办公照明空间,可以有多少种布灯方式?
这不叫布灯,这其实正经算照明设计了,赶紧收藏学起来吧。
大办公空间

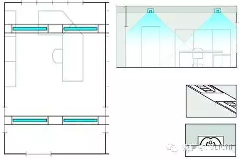
1、方形灯盘均布

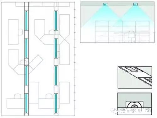
2、线型灯盘均布

3、筒灯均布

4、灯盘+射灯

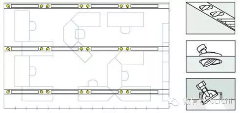
5、灯盘线性排列

6、落地灯间接照明+直接照明

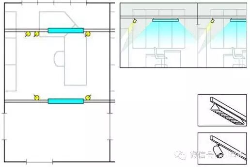
7、悬吊式间接照明+直接照明+射灯

经理办公室

1、灯盘均布

2、筒灯均布

3、灯盘线性排列

4、悬吊式轨道直接照明+间接照明+射灯

5、悬吊式灯盘直接照明+间接照明+射灯

6、悬吊式轨道+射灯

7、壁灯间接照明+台灯直接照明

老板办公室

1、筒灯+台灯

2、洗墙筒灯+射灯

3、筒灯+射灯+灯盘

4、洗墙筒灯+射灯+台灯

5、洗墙灯+灯盘

6、洗墙筒灯+导轨射灯

多种照明方式,多种照明效果,营造不同的氛围,满足不同的功能。喜欢哪个?赶紧用起来吧!
【版权信息】本文原图引用自ERCO网站,由照明微课堂编辑整理,转载请注明。